南宫28

资讯&动态

Information & Dynamics

高效分割图纸之CAD分图助手高能上线!

新闻来源: 阅读数量:1039 更新日期:2024/8/12


今天要和大家介绍图纸分割的方法,图纸作为工程设计和施工的基石,可以帮助工程师和施工人员快速找到所需的信息,做出准确的判断和决策。

图纸在绘制时为确保设计的完整性和系统性是整套存在的,区分不同类别和专业,例如图纸有房建、桥梁、机场等类别,按照一定顺序和逻辑排列,因此若需更好的应用图纸,就得先进行图纸分割。

image.png

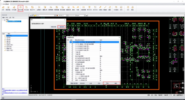
1-1 整套图纸展示

分割后的图纸不仅可以用于翻模,还可以用于文件归档,图纸审查,优化打印等。而对于BIM项目,主要是用于翻模,对分割好的图纸进行链接,大大提高建模的效率。

今天介绍的工具-CAD分图助手,是一款可以帮助用户快速分割图纸的工具,那相较其它软件,快速分割体现在哪?

01、高效完成图纸分割

自动分割,提高效率5倍以上 

运用人工智能技术结合制图规范实现图纸的自动分割,一套图纸只需3步,即打开图纸→自动分割→一键导出,实现一体化流程,全自动分割,大幅度提升分割图纸的效率。

例如一整套图纸,需分割25张图纸,CAD分图助手仅用5分钟可以完成分割并导出图纸,用其它软件分割需要25分钟左右。

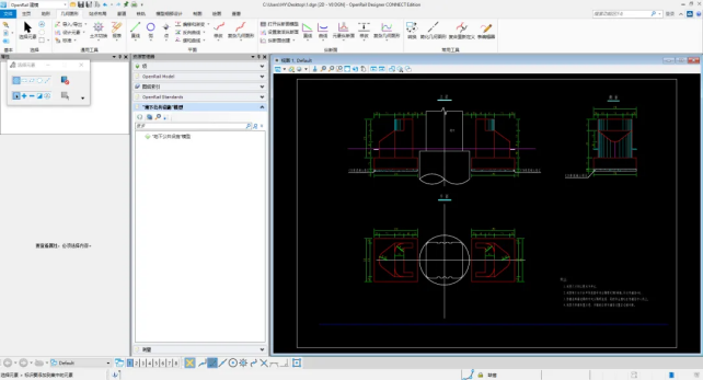
image.png

2-1 被分割的结构图

多专业图纸轻松分割,自动分类快人一步

建筑、结构、机电、市政等各个专业的图纸,使用软件都能进行快速分割,自动分类。分割后的所有图纸显示在列表中,可以进行高效管理,支持图纸定位、展开、收缩、修改等,直接解决检索和查找量大的问题,避免出现分割缺漏。

image.png

2-2 自动分类,快速定位

分割方式多样化,一键导出图纸

自动分割分为一键全图搜索自动分割和框选图纸范围自动分割,也提供手动分割,解决不同图纸的表达情况,最终实现图纸的便捷、快速分割,一键导出图纸,节约时间成本。

image.png

2-3 分割方式多样化

自动划分范围、匹配图名

自动分割会识别图纸中的轴网与名称,确定分割范围,自动读取图纸名称,每个图纸按专业类型进行构件类型匹配,形成分割图纸目录,实现分割图纸后的快速核查。

image.png

2-4 自动划分范围、匹配图名

手动分割自动提取图名,减少繁琐的命名工作

应用手动分割图纸时,通过点击图纸图名可自动提取名称,并在导出图纸时自动作为文件名称,无需手动输入,分割数量多时,可帮助用户迅速完成重复性的数据输入工作。

image.png

2-5 单击名称自动提取图名

手动分割单张图纸,可快速导出图纸

用户只需分割单张图纸时,提供手动分割与快速导出图纸的功能组合,这种直观且高效的操作方式,让用户能够迅速获取所需结果,极大地缩短了处理时间。

image.png

2-6 分割后即导出,缩短了处理时间

可编辑性图层管理,灵活调控

图层管理不仅允许用户根据需要,控制各个图层的显示与隐藏,还可修改同一个图层上所有对象的共享属性,如颜色、线型、线宽等。同时也可新增图层,对不同元素分门别类进行放置,使图纸看起来更加清晰有序,便于理解和查找。

image.png

2-7 图层管理,便于理解和查找

任意绘线、文字标注,统统搞定

在各专业配合过程中,有修改的图纸需要提资给其它专业,需对图纸进行批注,可使用软件提供的任意绘线、画直线、单行文字、多行文字等功能,确保图纸准确无误,各方对图纸内容理解一致。

image.png

2-8 任意绘线、文字标注

导出图纸兼容性强,无缝对接建模软件

分割后的图纸为*.DWG格式,可直接导入广联达、Bentley、Revit等各类建模软件进行使用,不受平台限制,大家仍然可使用各自擅长的软件工具进行协作,提高整体工作效率,满足不同客户的使用需求,为建模铺平道路。

image.png

2-9 导入广联达

image.png

2-10 导入Bentley

02、软件操作对比

其它软件分割图纸操作流程

①打开图纸;

②选择“分割导出功能”,框选图纸范围;

③选择“导出图纸”,输入图纸名称,选择路径导出;

④重复②-③流程,直至所需图纸全部分割完成。

需分割图纸多时,重复次数,操作步骤成倍增长,花费时间长。

CAD分图助手分割图纸操作流程

①打开图纸;

②选择自动分割的一键分割,显示分割成功的图纸目录,如图3-1;

③选择“导出”,一键导出分割后的所有图纸,如图3-2。

需分割图纸多时,只需一键分割,自动分割所有图纸,一键导出并可自动获取图纸名称。

image.png

3-1 自动分割后的图纸目录

image.png

3-2 分割图纸,一键导出所有图纸


常见问题解答

1、自动分割图纸时,若图纸没有匹配到相应的构件类型,是否会有什么影响?

完全没有影响。自动分割时图纸会匹配构件类型是为了方便按类型核查,不容易有错漏,若图纸没有匹配到相应构件类型时,可手动输入名称或者不输入,最后图纸会归类到“自定义”一项。

image.png

4-1 构件为空时,自动归类为“自定义”

2、自动分割时弹出提示框“所选图纸无法进行自动分割”,该如何处理?

自动分割的原理是结合轴网和图名的识别技术,未匹配到工程名称或者图纸无轴网时,会提示图纸无法进行自动分割,可根据提示引导,应用手动分割功能进行分割图纸。

image.png

4-3 无法自动分割提示

3、是否可以对图纸的部分区域进行分割导出?

可以对图纸部分区域进行分割导出,若是分割到块,会进行自动炸开,按框中部分进行导出图纸,如图4-4。

image.png

4-4部分区域导出


效率对比

为了更好的完成本次分享,南宫28也向首批使用CAD分图助手工具的小伙伴们收集了八组使用软件时间对比。这个功能从很大的程度上解决重复工作量的问题,切实解决了操作繁琐的问题,获得小伙伴们的肯定(附:5-1工具效率对比图)。

image.png

5-1 工具效率对比图



为进一步完善产品体验

优化产品功能

CAD分图助手

 免费试用啦!!!

联系电话:400-007-2310转815

联系QQ:2850410170

或扫描下方二维码联系官方客服

即可获得

CAD分图助手免费试用权限

赶快行动吧~


image.png



南宫28