南宫28

资讯&动态

Information & Dynamics

墙钢筋怎么布置?包教包会!

新闻来源: 阅读数量:470 更新日期:2024/6/18

剪力墙钢筋布置

操作过程

①点击【南宫28BIM钢筋】选项卡,【钢筋定义】功能;

②“构件类别”面板中选择砼墙节点;

③在“钢筋信息”面板中配筋信息单元格中输入配筋信息。


image.png

1-1砼墙钢筋布置(前)

image.png

1-2砼墙钢筋布置(后)

常见问题

①剪力墙可以查看钢筋实体吗?

回复:选择需要布置的剪力墙,点击【单项布置】后再点击【钢筋显示】查看钢筋实体。

②剪力墙能不能生成拉筋的钢筋实体?

回复:需要在【钢筋设置】里把【拉筋根数计算方式】设置为【按规范计算】即可查看拉筋钢筋实体。

image.png

1-3拉筋实体设置


砌体墙钢筋布置

操作过程

①点击【南宫28BIM钢筋】选项卡,【钢筋定义】功能;

②“构件类别”面板中选择砌体墙节点;

③在“钢筋信息”面板中配筋信息单元格中输入配筋信息。

image.png

2-1砌体墙钢筋布置(前)

image.png

2-2砌体墙钢筋布置(后)


人防墙布置

使用背景

用于创建含钢筋信息的人防墙构件图元。

操作过程

①点击【南宫28BIM钢筋】选项卡,【人防墙布置】功能;

②在“参数设置”面板中选择需要更改的构造,选择需要更改的参数图;

③点击【绘制】按钮,在模型中砼墙构件上依次单击起点和终点,创建成功。

image.png

3-1人防墙钢筋布置(前)

image.png

3-2人防墙钢筋布置(后)

常见问题

①人防墙构造尺寸参数怎么进行修改?

回复:在人防墙参数设置窗口,点击示意图尺寸线上的绿色数字,弹出修改尺寸窗口,输入新尺寸数值,点击【确定】,完成尺寸修改,构造柱图中显示新尺寸参数值。

②人防墙配筋信息如何修改呢?

回复:在人防墙参数设置窗口点击【编辑钢筋】,弹出截面编辑窗口,采用界面上方按钮进行钢筋样式自定义,修改完成,点击【保存】即可。


地下连续墙

地下连续墙是基础工程在地面上采用一种挖槽机械,沿着深开挖工程的周边轴线,在泥浆护壁条件下,开挖出一条狭长的深槽,清槽后,在槽内吊放钢筋笼,然后用导管法灌筑水下混凝土筑成一个单元槽段,如此逐段进行,在地下筑成一道连续的钢筋混凝土墙壁,作为截水、防渗、承重、挡水结构。

使用背景

该功能用于设置地下连续墙计算用的参数内容,如:保护层、抗震等级和钢筋配筋等内容。

操作过程

①点击【南宫28BIM钢筋】选项卡,【地下连续墙】功能;

②选择楼层,选择地下连续墙名称;

③设置对应的参数信息。

image.png

4-1地下连续墙钢筋布置(前)

image.png

4-2地下连续墙钢筋布置(后)

常见问题

①如何辨别背土面保护层和迎土面保护层?

回复:平面视图中剪力墙箭头标识所在一侧为迎土面保护层,非箭头一侧即为背土面保护层。

image.png

4-3标识符所在一侧为迎土面


墙洞补强筋

使用背景

当砼墙有洞口时,输入墙洞补强筋及补强暗梁的参数,快速布置工程中所有的墙洞口钢筋。

操作过程

①点击【南宫28BIM钢筋】选项卡,【墙洞补强筋】功能;

②输入不同洞口尺寸,对应的墙洞补强筋配筋信息。

image.png

5-1墙洞补强筋布置(前)

image.png

5-2墙洞补强筋布置(后)

常见问题

①设置好墙洞补强筋如何查看钢筋实体?

回复:选择砼墙,点击【单项布置】,计算并布置砼墙与墙洞补强筋实体。


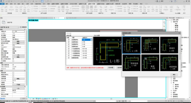
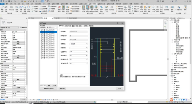
砌体墙拉结筋

使用背景

用于砌体墙和柱、砼墙之间拉结钢筋的载体布置。

操作过程

①点击【南宫28BIM钢筋】选项卡,【砌体墙拉结筋】功能;

②点击“加载条件”按钮,选择节点样式;

③回到砌体加筋样式设置窗口,选择布置按钮。

image.png

6-1砌体墙拉结筋布置(前)

image.png

6-2砌体墙拉结筋布置(后)

说明

①选择手动布置时,需同时框选砌体墙和其相交的柱(框架柱、构造柱和墙柱)或砼墙构件来进行砌体墙载体布置。





南宫28